5047

Продается квартира 3-комнатная 75.6 м², Москва, Краснобогатырская ул, 40

Свяжитесь с нами сейчас

Жанна Любимова

26 900 000 ₽
Параметры объекта
3-комнатная
1 сан.уз
76 кв.м.
3 этаж
без мебели
Мебель: без мебели
Ремонт: требует ремонта
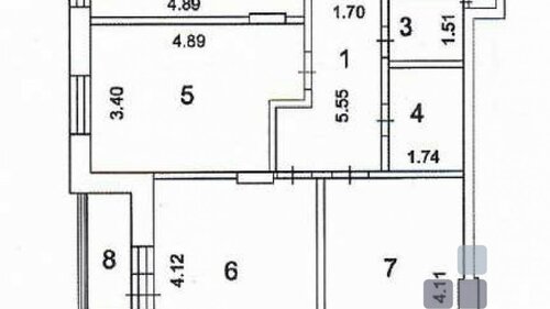
Жилая площадь: 45.30 м²
Площадь кухни: 11.00 м²
Возможности: ипотека
Описание

Id 5047. Лучшая цена - поторопитесь!
ВИДовая квартира в новом уединенном ЖК бизнес-класса «Большая Семёрка» (Один из лучших корпусов- 2 корп., максимально удален от трамв.путей).
Из окон квартиры открываются впечатляющие виды на благоустроенную набережную р. Яуза.
Функциональная планировка, 5 окон, отсутствие стен - позволит реализовать наилучшее для вас планировочное решение (этажом ниже коммерческие помещения, а значит можно не ограничивать себя в вариантах) . Также есть возможность использования кровли стилобата.
Жилой комплекс расположен на берегу реки Яуза рядом с парками Сокольники и Лосиный остров. Комплекс состоит из 7 семнадцатиэтажных зданий, соединенных между собой единым этажом с коммерческими помещениями. Внутренний двор оснащен спортивными зонами, игровыми площадками для детей и местами для отдыха на природе. В проект благоустройства входит уютный двор с детским городком, современные work-out зоны для занятий спортом на природе , благоустроенная набережная для прогулок и отдыха, выделенные дорожки для велосипедов и уютные беседки для спокойного времяпрепровождения на природе.
Холлы и лифтовые зоны выполнены по авторскому дизайн-проекту. На территории комплекса реализована концепция двор без машин. В подъезде на 1 этаже предусмотрена комната для хранения колясок, велосипедов, самокатов. Около дома есть наземная парковка за шлагбаумом. А также, построен одноуровневый подземный паркинг с автомойкой.
Комплекс находится в окружении трех парков с крупными лесными массивами: Сокольнического, Измайловского и Лосиного Острова. Парк Сокольники находится в пешей доступности — на расстоянии 1 км от комплекса, с отлично развитой инфраструктурой для спорта и отдыха.
В пешей доступности несколько школ, детских садов, поликлиника, магазины, фитнесс, медицинские учреждения, аптеки, сервисные центры.
Рядом с ЖК будет новая остановка D5 водного транспорта. Вот такое инновационное и уникальное решение в рамках проекта МЦД D5 будет реализовано в ближайшие годы по соединению Ярославского и Павелецкого направлений.
До метро Белокаменная , Бульвар Рокоссовского, Преображенская площадь, Сокольники легко добраться транспортом. Также удобно воспользоваться автобусом и трамваем (остановка в 2-х минутах пеш.).

1 взрослый собственник ( основание- ДДУ 2021 г.). Оперативный показ. Быстрый выход на сделку.
Ждём вас.Номер объекта: #5/537656/24086

Город: Москва
Район: Москва

Посмотреть на карте

Общие сведения
монолит
без лифта
нет парковки

Запланировать просмотр

Запланировать просмотр

Мы свяжемся с вами, согласуем выбранное время и организуем просмотр объекта.

Калькулятор ипотеки

Калькулятор ипотеки

Цена недвижимости: 26 900 000 ₽

Сумма кредита:

2700000

2700000

10

Платёж в месяц:

похожие объекты

Свяжитесь с нами сейчас

Мы Вам перезвоним: